Neubau in Westerland auf Sylt
Bezugsfertig
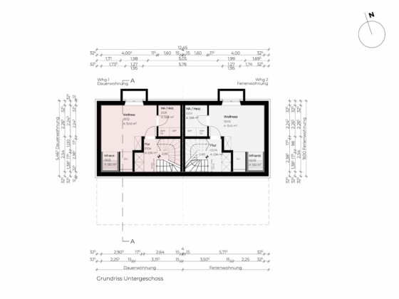
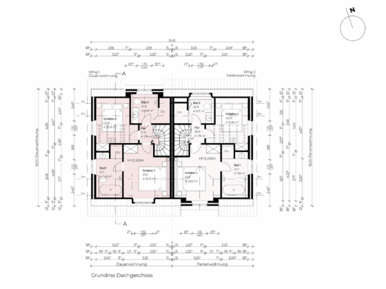
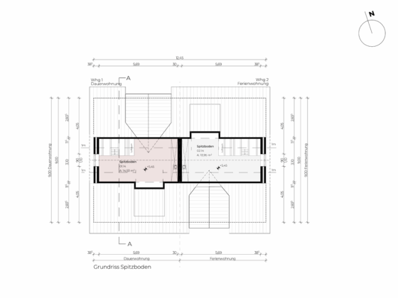
- Wohnhaus mit einer Dauerwohnung und einer Ferienwohnung (Ferienwohnung verkauft !)
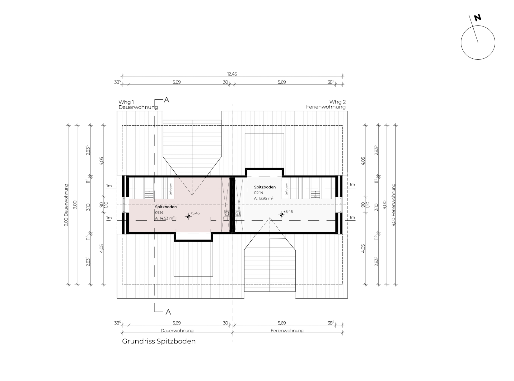
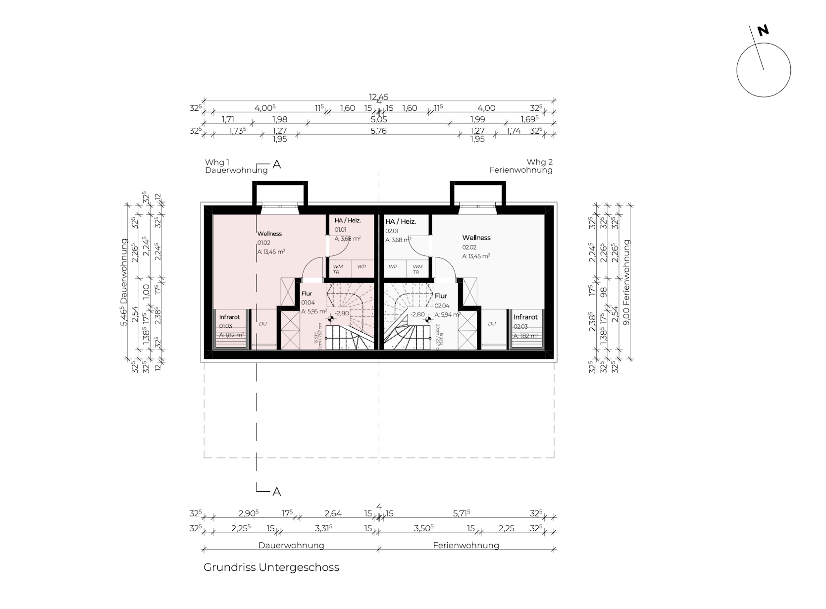
- ca. 2x 123 qm Wohn- und Nutzfläche nach Sylter Maß.
(Berechnung alle Wohn- und -Nutzflächen von Fußleiste zu Fußleiste, sowie die Terrasse und Carport/Abstellräume zu 50%)
Alle Maße sind Planmaße. Die endgültigen Maße und Flächen sind nach Fertigstellung zu ermitteln. - Zentral und ruhig in einer Sackgasse.
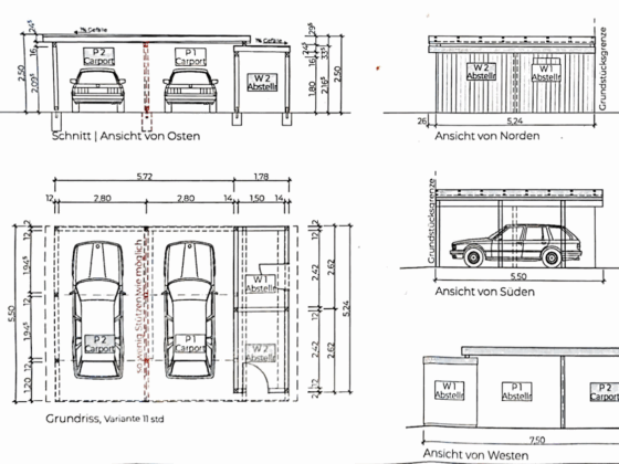
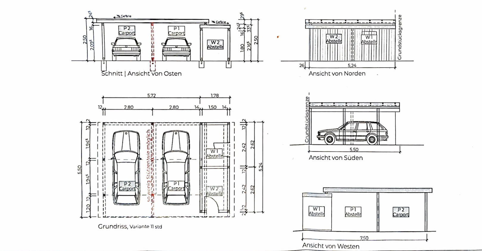
- Naturschiefer, historischer Stein, Carport mit jew. 1 Stellplatz, Holzfenster, exklusive Tischlerarbeiten, Erdwärme, Gaskamin und Sauna.
- ca. 3 Minuten Gehweg in die Friedrichstrasse.
- ca. 10 Minuten Gehweg zum Strand. Weitere Angaben folgen demnächst.
- Kaufpreis auf Anfrage.
-
Energieausweis: Bedarfsausweis, Endenergiebedarf 16,6 kWh/(m²·a), wesentlicher Energieträger: Erdwärme, Strom-Mix. Baujahr: 2025, Energieeffizienzklasse: A+.
Der Energieausweis liegt zur Besichtigung vor.








































